Overview
- Updated On:
- March 9, 2026
- 3 Bedrooms
- 2 Bathrooms
Property Description
Mark Anthony Estate Agents are delighted to bring to the market this attractive end of terrace Victorian Cottage located on the outskirts of Ewell Village which is an ideal location for Ewell West and Stoneleigh Mainline stations. The location also ideal for village life with a variety of local shops, restaurants, Ewell Grove and Glyn Schools.
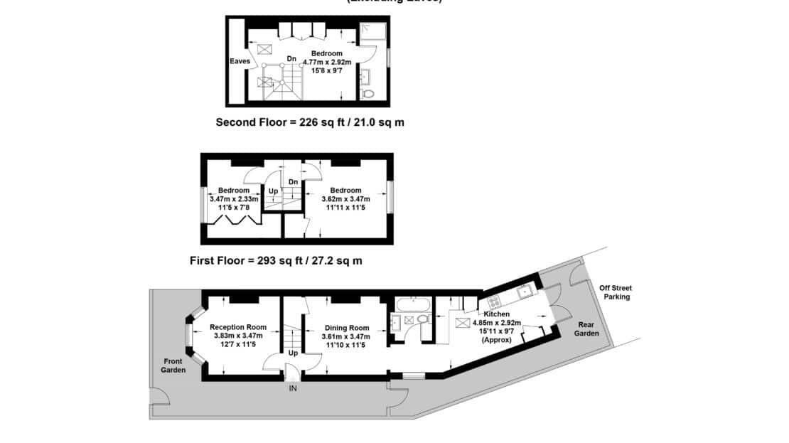
The immaculate accommodation arranged over three floors includes to the ground floor entrance hall, front aspect reception room with log burner, polished floorboards, bay window seat incorporating storage cupboards and plantation shutters, separate dining room with feature fireplace and exposed floorboards, extended modern fitted kitchen/breakfast room with Shaker style units, integrated appliances, butler sink, woodblock work surfaces and patio doors leading to and overlooking the delightful rear garden with patio and lawned areas. The ground floor accommodation is completed with a modern family bathroom.
On the first floor there are two double bedrooms with original feature fireplaces and built in wardrobes and plantation shutters to the front bedroom, staircase leading to the second floor master bedroom with build in wardrobes, electric Velux windows and blinds and modern ensuite shower room.
The property further benefits from front and rear gardens, character features complemented by the décor and off street parking to the rear with gated access to the garden.
Viewing is essential to fully appreciate all this superb family home has to offer.



























