Overview
- Updated On:
- April 20, 2026
- 1 Bedrooms
- 1 Bathrooms
Property Description
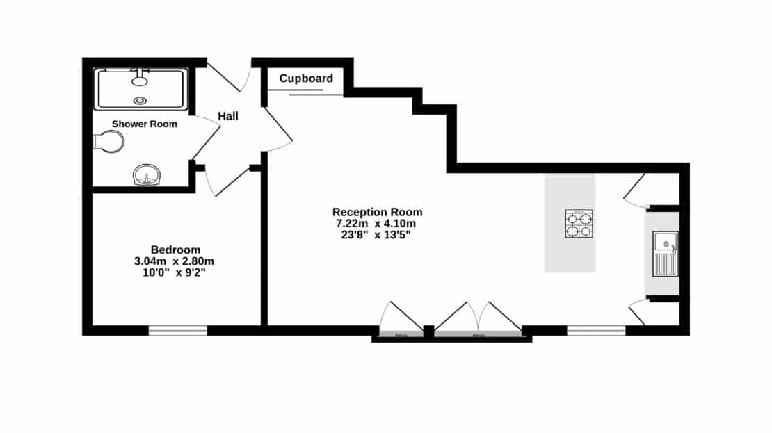
Mark Anthony Estate Agents are proud to present to the market this immaculate one bedroom apartment in the highly sought after Printworks development. Completed in 2016 this modern development is ideally situated for access to transport with bus links straight to Morden underground and Worcester Park Mainline station and shopping parade.
Upon arrival at the apartments you will find a spacious well maintained lobby and a friendly concierge to greet you; lifts or stairway lead to the second floor.
The light and airy apartment benefits from a modern open plan kitchen/reception with Juliet balcony, luxury shower room and double bedroom. The apartment further benefits from allocated parking.
Viewing is essential to fully appreciate all that this stylish modern apartment offers.











